
MORE INFORMATION
Floor Plan, features and more
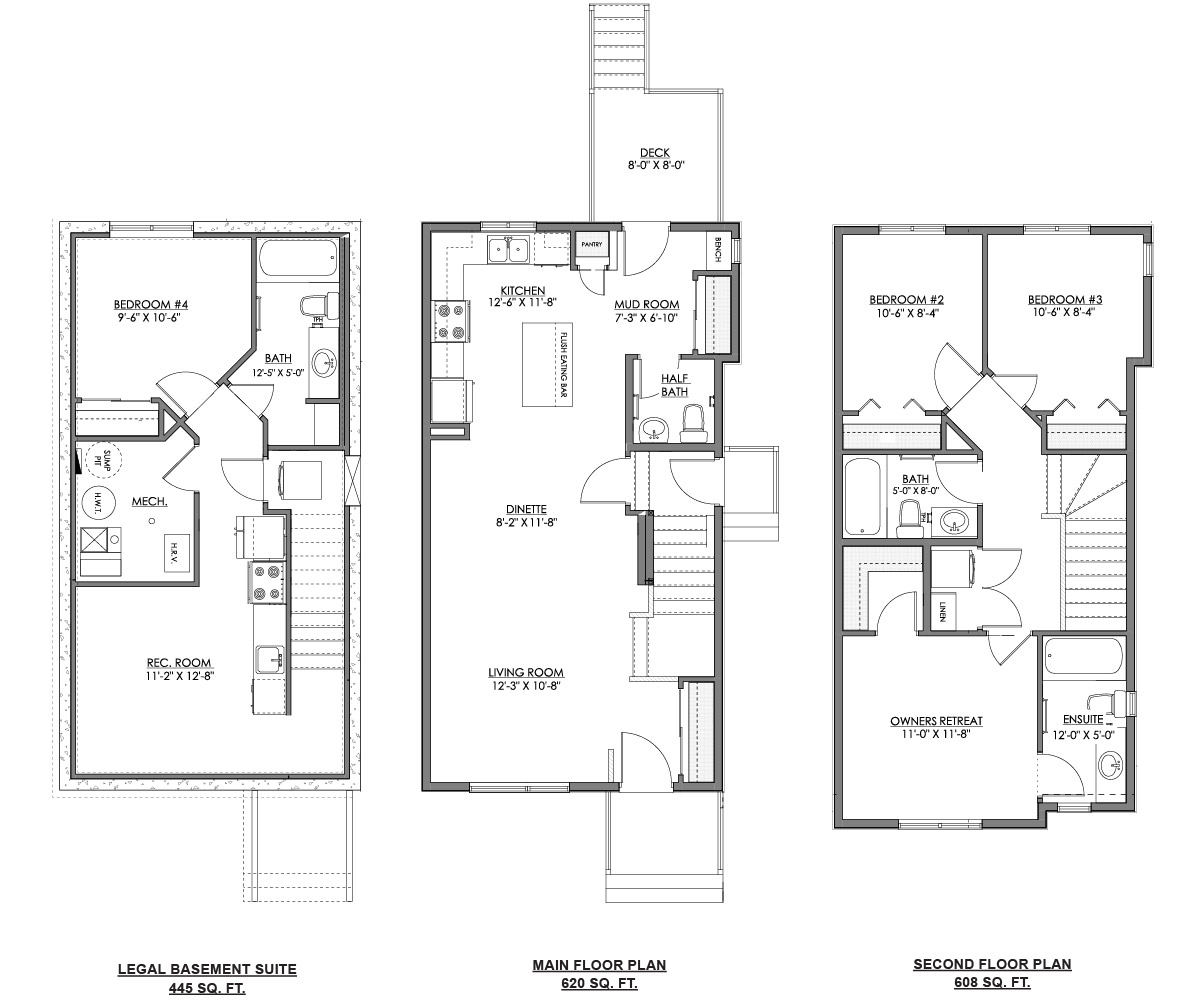
- Legal basement suite developed
- Quartz countertops and vinyl plank flooring throughout
- Appliance credit to Trail Appliances
- Rough grade certificate
- Exterior deck with railing
- Double car concrete parking pad with driveway
If you still have questions, you can reach out by sending us your questions using the form below and we will reply to you as soon as possible.
Quick Possession Gallery
Be Inspired by Stunning Interiors

COMMUNITY INFORMATION
ABOUT Verge at Stillwater COMMUNITY
Nestled in the scenic Riverview area of West Edmonton, the Verge at Stillwater will blend natural features like wetlands, parks, and trails with nearby conveniences such as schools, recreational facilities, and shopping. Our expertly crafted two-storey home designs offer you a limited selection of homes to meet all your unique lifestyle needs.
- Laned homes with optional side entrances and legal basements
- Rear parking pads with optional garages
- Rough grade certificate
- Modern finishing such as vinyl plank flooring & quartz counters
- Appliance credit to Trail Appliances
MORTGAGE CALCULATOR
Calculate Your Mortgage Payments

Mortgage amount
Monthly payment


3 Bed
2.5 Bath
1207 sqft






